IHR SPEZIALIST FÜR GARTENHÄUSER UND WOCHENENDHÄUSER

Gartenhaus - Gartenlaube Helsinki 24qm mit Schlafboden

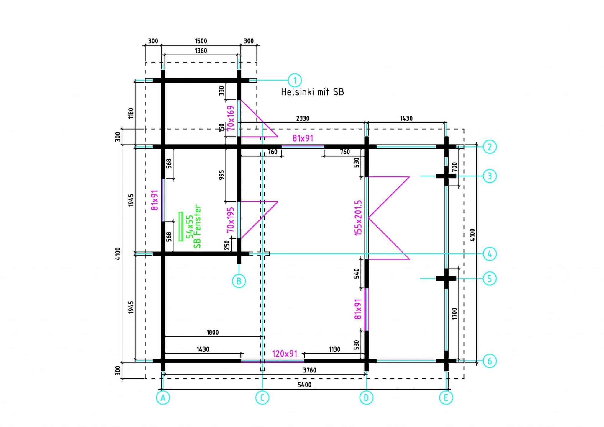
  • 50 mm massive Blockbohlen in doppelt Nut & Feder
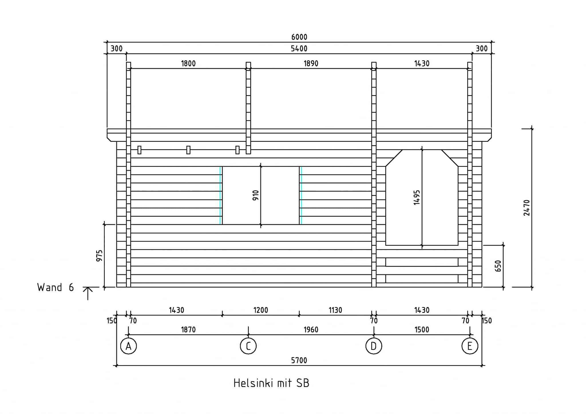
  • Firsthöhe mit Schlafboden: ca. 3,50 m
  • Seitenwandhöhe: ca. 2,34 m
  • Grundrahmen und Fußbodenträger 68 x 44
  • 20 mm Dachschalung mit Nut & Feder
  • 26 mm Fußbodendielung mit Nut & Feder
  • Schlafboden 4,0 m x 1,4 m mit Schlafbodenleiter
  • eine Doppeltür mit Isolierglas, Beschlägen, Sprossen und Profilzylinderschloss
  • eine Schuppentür mit Beschlägen und Profilzylinderschloss
  • Fenster mit Isolierglas in Dreh/Kipp, Beschlägen & Sprossen
  • mit und ohne Schlafboden erhältlich


Das Blockhaus Helsinki ist eine klassische Gartenlaube mit einem Schlafboden, kann jedoch auch ohne diesen Boden errichtet werden. Es eignet sich daher perfekt für Kleingärten oder private Grundstücke.

Unsere Blockhausvariante „Helsinki“ wird in Blockbohlenbauweise mit einer Bohlenstärke von 50 mm gefertigt und bietet eine Fläche von 24 m². Dadurch ist es eine hervorragende Wahl für Ihren Garten oder Schrebergarten, kann aber ebenso gut als Gästehaus auf einem größeren Grundstück oder als gemütliches Ferienhaus genutzt werden. Eine der herausragenden Eigenschaften des Helsinki ist zweifellos der hohe Grad an Gemütlichkeit.

Neben dieser Wohlfühlatmosphäre punktet das Helsinki auch mit zahlreichen technischen Highlights. Es verfügt über einen eigenen Schlafboden und beeindruckende Maße: eine Firsthöhe von 3,50 m und eine Seitenwandhöhe von 2,34 m. Der Schlafboden erstreckt sich über eine Fläche von 4,0 m x 1,4 m und ist über eine eigene Leiter leicht erreichbar. Die Eingangstür ist eine Doppeltür mit einem Profilzylinderschloss und Isolierglas, ausgestattet mit hochwertigen Beschlägen und Sprossen. Zusätzlich gibt es eine Schuppentür aus Holz für den Anbau, die ebenfalls mit einem Profilzylinderschloss und passenden Beschlägen versehen ist. Der Anbau eignet sich hervorragend zur Aufbewahrung von Gartengeräten und verstärkt den Charakter des Blockhauses als klassische Gartenlaube.

Wie bei all unseren Schlafbodenhäusern bieten wir auch für das Helsinki optional hochwertige Deluxe-Fenster und -Außentüren an. Diese zeichnen sich durch robuste verleimte Rahmenkonstruktionen, den bequemen Einhand-Dreh-Kipp-Mechanismus oder eine zuverlässige 3-Fach-Verriegelung aus. Selbstverständlich stehen Ihnen auch individuelle Anpassungen und Ausstattungsoptionen zur Verfügung. Gerne erstellen wir Ihnen ein unverbindliches Komplettangebot – kontaktieren Sie uns noch heute!

Die angegebenen Kosten sind für Barzahlungen und beinhalten 19 % MwSt. Sie haben die Option, Montagekosten hinzuzufügen, oder Sie können die Häuser auch ohne Montage erwerben. Im Bausatzpreis sind Deko-Elemente, Dachmaterial und Montagezubehör nicht inbegriffen. Einige der gezeigten Häuser sind möglicherweise Sondermodelle und können je nach Design von den Standardmodellen abweichen. Einige Blockhäuser haben Farbanstriche, die nicht im Lieferumfang enthalten sind. Die angegebenen Maße sind ungefähre Werte, und es können Änderungen vorgenommen werden.

Unser 12-Tonnen-LKW, der normalerweise ohne Entladehilfe kommt, kümmert sich um den Transport. Wenn Sie sich für eine Bausatzmontage entscheiden, wird die Montagefirma das Abladen übernehmen. Der Zugang zum Baugelände sollte nicht weiter als 30 m entfernt sein. Beachten Sie, dass die Transportkosten nicht im Preis des Hauses inbegriffen sind und je nach Lieferentfernung variieren.

Die Zusammenstellung des Bausatzes beinhaltet das Aufbauen des Gebäudes, das Einsetzen von Fenstern und Türen, das Anbringen des Fußbodenbelags sowie das Anbringen der äußeren Dachverkleidung.

Um Ihr Holz langlebig zu halten, ist ein passender Schutz unverzichtbar. Die HK-Lasur von Remmers ist unsere Empfehlung für die äußere Anwendung. Sie ist dünn, schützt Ihr Haus bestens und ist in vielen Farben beim Fachhändler zu finden. Achtung: Ein Lack oder eine Dickschichtlasur ist für Ihr Blockhaus nicht geeignet!

In Kleingärten ist das Bauantragsverfahren unkompliziert und ohne Ingenieurleistungen. Man braucht nur die Genehmigung des Kleingartenvorstandes und des zuständigen Bezirksamtes. Aber Achtung! Es gibt klare Richtlinien, die je nach Region variieren können.

Zeichnung/Grundriss (PDF) Bausatzpreis Montage
Helsinki mit Schlafboden 9.110,- EUR 2.200,- EUR

Selbstverständlich können Sie individuelle Maße und Anpassungen anfragen. Wir haben zudem eine Vielzahl an Ausstattungsoptionen im Angebot. Optional bieten wir Ihnen weitere Leistungen gegen Aufpreis an, dazu zählen Isolierung, Dachgestaltung und Regenrinnen.