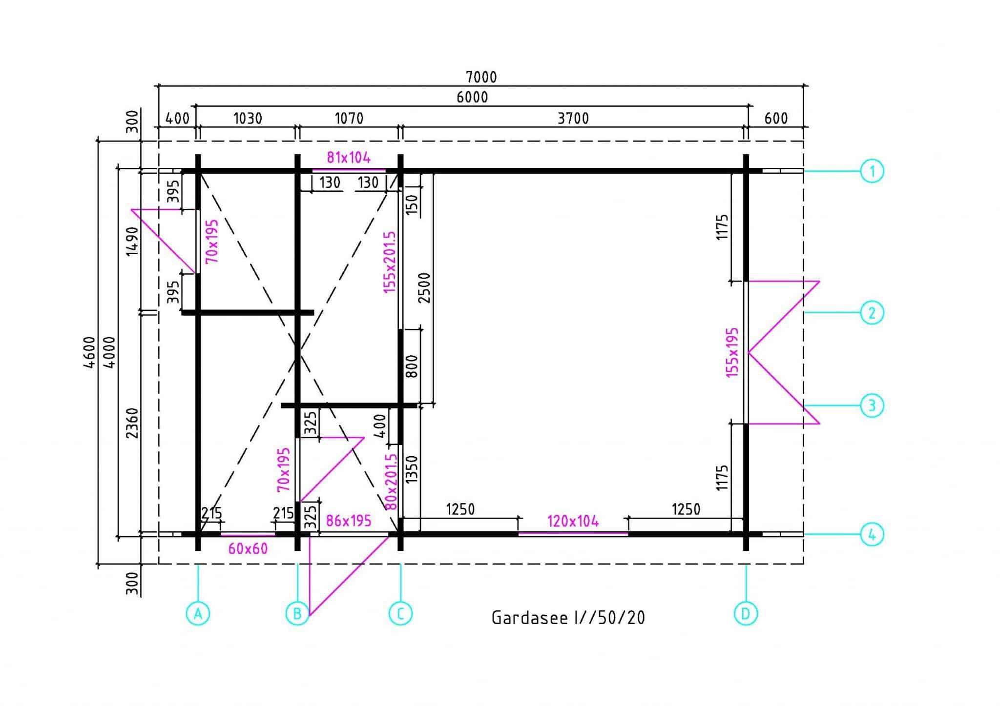
Gartenhaus Gardasee 24qm mit Schlafboden
- 50 oder 70 mm Blockbohlenwände mit doppelt Nut und Feder
- 4 m x 6 m / 24 m² Grundfläche
- ca. 3,50 m Firsthöhe, ca. 2,34 m Seitenwandhöhe
- 2,07 m Seitenwandhöhe unterhalb des Schlafbodens
- 26 mm Fußbodendielung in Nut & Feder
- 20 mm Dachschalung in Nut & Feder
- Schlafbodenträger bestehend aus Blockbohlen
- 20 mm Schlafbodendielung in Nut & Feder, 1 Leiter
- 1 Stück Doppelfenster 1200 x 910
- 1 Stück Einflügelfenster 810 x 910
- 1 Stück Badfenster 600 x 600
- 1 Schlafbodenfenster 45 x 47
- 1 Doppelflügeltür 1550 x 1950 halb Holz-halb Isolierglas mit einem Profilzylinderschloß
- 1 Seiteneingangstür 800 x 1950 halb Holz-halb Isolierglas mit einem Profilzylinderschloß
- 1 Vollholzinnentür 700 x 1950
- 1 Schuppentür Vollholz 700 x 1950 mit einem Profilzylinderschloß
- Version II mit größerem Geräteraum
Das Gardasee Schlafbodenhaus ist in vielen Großstädten wie Berlin und Hamburg als Gartenhütte in Kleingärten sehr gefragt. Dank seiner durchdachten Raumaufteilung und dem eingebauten Geräteraum ist es sehr praktisch. Der Geräteraum kann nur von außen betreten werden, was in vielen Gärten vorgeschrieben ist. Das Modell Gardasee II bietet noch mehr Platz für Werkzeuge. Dieses Haus ist nicht nur für Gartenliebhaber geeignet, sondern auch als Gäste-, Wochenend- oder Ferienhaus. Mit einem zusätzlichen Schlafboden bietet das 24 m² Haus mehr Platz zum Schlafen oder Lagern.
Mit einer Wanddicke von 50 mm oder 70 mm ist es perfekt für wärmere Monate, kann aber auch im Herbst, Frühling oder sogar im Winter mit einer Heizung genutzt werden. Eine Dach- und Bodenisolierung ist empfehlenswert, insbesondere im Sommer, um Überhitzung zu vermeiden.
Wir bieten auch Deluxe-Fenster und -Türen mit stabilen Rahmen, Dreh-Kipp-Funktion und Dreifachverriegelung an. Teilen Sie uns Ihre Wünsche mit, und wir erstellen Ihnen ein maßgeschneidertes Angebot!
Die angegebenen Kosten sind für Barzahlungen und beinhalten 19 % MwSt. Sie haben die Option, Montagekosten hinzuzufügen, oder Sie können die Häuser auch ohne Montage erwerben. Im Bausatzpreis sind Deko-Elemente, Dachmaterial und Montagezubehör nicht inbegriffen. Einige der gezeigten Häuser sind möglicherweise Sondermodelle und können je nach Design von den Standardmodellen abweichen. Einige Blockhäuser haben Farbanstriche, die nicht im Lieferumfang enthalten sind. Die angegebenen Maße sind ungefähre Werte, und es können Änderungen vorgenommen werden.
Unser 12-Tonnen-LKW, der normalerweise ohne Entladehilfe kommt, kümmert sich um den Transport. Wenn Sie sich für eine Bausatzmontage entscheiden, wird die Montagefirma das Abladen übernehmen. Der Zugang zum Baugelände sollte nicht weiter als 30 m entfernt sein. Beachten Sie, dass die Transportkosten nicht im Preis des Hauses inbegriffen sind und je nach Lieferentfernung variieren.
Die Zusammenstellung des Bausatzes beinhaltet das Aufbauen des Gebäudes, das Einsetzen von Fenstern und Türen, das Anbringen des Fußbodenbelags sowie das Anbringen der äußeren Dachverkleidung.
Um Ihr Holz langlebig zu halten, ist ein passender Schutz unverzichtbar. Die HK-Lasur von Remmers ist unsere Empfehlung für die äußere Anwendung. Sie ist dünn, schützt Ihr Haus bestens und ist in vielen Farben beim Fachhändler zu finden. Achtung: Ein Lack oder eine Dickschichtlasur ist für Ihr Blockhaus nicht geeignet!
In Kleingärten ist das Bauantragsverfahren unkompliziert und ohne Ingenieurleistungen. Man braucht nur die Genehmigung des Kleingartenvorstandes und des zuständigen Bezirksamtes. Aber Achtung! Es gibt klare Richtlinien, die je nach Region variieren können.
| Zeichnung/Grundriss (PDF) | Bausatzpreis | Montage |
|---|---|---|
| Gardasee 1 in 50 mm | 9.000,- EUR | 2.200,- EUR |
| Gardasee 1 in 70 mm | 10.240,- EUR | 2.200,- EUR |
| Gardasee 2 in 50 mm | 9.000,- EUR | 2.200,- EUR |
| Gardasee 2 in 70 mm | 10.240,- EUR | 2.200,- EUR |
Selbstverständlich können Sie individuelle Maße und Anpassungen anfragen. Wir haben zudem eine Vielzahl an Ausstattungsoptionen im Angebot. Optional bieten wir Ihnen weitere Leistungen gegen Aufpreis an, dazu zählen Isolierung, Dachgestaltung und Regenrinnen.
Gartenhaus Gardasee I
Gartenhaus Gardasee II
„*“ zeigt erforderliche Felder an